We’re excited to share that applications are officially open for our 17 affordable and supportive apartments at Main Street Housing, with 1, 2, and 3-bedroom options.
Here’s how you can apply. Please read carefully:
Download an application below
OR
Pick up a paper application at FROM's Main Office (11535 Fulton St E)
- Applications must be submitted in person to the FROM Main Office either during open hours (Monday – Thursday, 10 AM – 4 PM) or placed in the secure lockbox outside the Main Office. Applications are open now through April 30 at 4 PM. Applications submitted by mail or electronically will not be accepted.
- Additional details, including rental costs, income requirements, and all additional requirements, are outlined in the application. Please be sure to review thoroughly.
- Have questions? Check out the FAQ below or give us a call at 616-897-8260 ext. 125 – we’re happy to help!
If you are applying, you must include:
- Completed application
- Income verification form (download below)
- At least 4 paycheck stubs (28 days) or other proof of income, social security determination letter, pension, etc., for all income.
- Copy of ID
- Copy of Social Security card
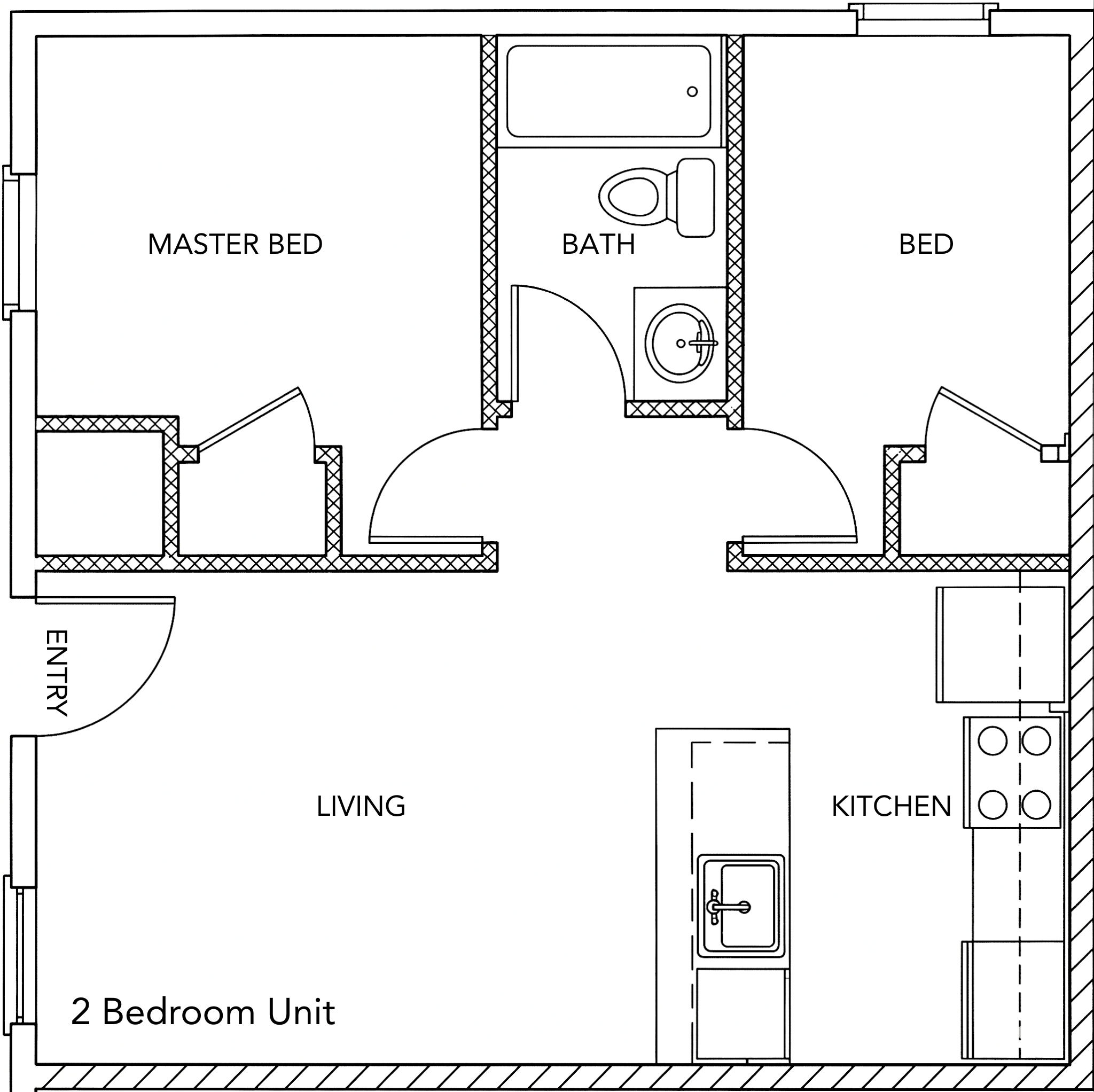
floor plans:
1 Bedroom unit:
2 Bedroom unit:
Duplex:


features:
- Affordable, supportive housing for families and individuals in the heart of Lowell
- Newly constructed in 2026
- 1, 2 & 3 Bedroom units
- New laminate flooring
- Quartz countertops
- A/C and Heating
- Community Laundry Center*
- Dishwasher
- Garden plot
- Private entrances
- Private onsite parking
- Community-forward layout
- Highly walkable location, a short distance to restaurants and retail.
- Local and reliable maintenance service
- Online rent payment options
- Onsite Supportive Services Office
how it works:
All eligible applications will be entered into a lottery and selected at random to ensure an equal chance for everyone.
Those selected will be notified by May 15 via phone call and email.
faq:
Q: What is the rent, and how were rent and utility charges determined?
A: The rent, utility, and deposit amounts can be found on the application for each unit. Rent and utility charges were calculated to cover the costs of operations. Based on a third-party study conducted in June 2024, our rent levels are 50% of the market rate for Lowell. (Baker Tilly, 2024).
Q: What income is included?
A: Please include all income found in the Income Verification Checklist. Primary sources include: employment, social security/retirement benefits, self-employment, child support, etc. This will be reviewed with you as well. Income from all persons over 18 should be included.
Q: Why is occupancy not until May 26-29?
A: Many people in the community made this project possible. We will celebrate with them on May 20 at the ribbon-cutting ceremony. After which, we will clean the units and the site to prepare for occupancy.
Q: Why is there a lottery instead of first-come, first-served?
A: The lottery allows us to give an equal chance to all applicants, regardless of work schedule and availability. All completed applications that are received by 4 pm on April 30 will be reviewed and included in the lottery. Applicants will be randomly selected for further consideration.
Q: How can I apply?
A: Applications are available at Flat River Outreach Ministries at 11535 Fulton Street East in the Main Office. Business hours are Monday through Thursday, 10 am to 4 pm, with access to a copy machine if needed. Applications are available after hours outside the Main Office entrance and may be downloaded from fromlowell.org/504 application
The application must be submitted at Flat River Outreach Ministries in person or in the dropbox after hours. The secure dropbox is located at the lobby entrance of Flat River Outreach Ministries at 11535 Fulton Street East. Electronic and mail applications are not accepted. We have limited staff and cannot process the number of applications that can be submitted online. Reasonable accommodation requests are welcome.
Q: Why are there minimum and maximum income levels?
A: These apartments are income-restricted, meaning your household income must fall between the minimum and maximum limits to qualify. Minimum income levels are set based on the state of Michigan guidelines that rent should not be more than 30% of household income. Maximum income levels are based on either 50% or 80% AMI (area median income) levels set by MSHDA and based on household size.
Q: Does the rent change based on my income?
A: No, the rent and utility charges are fixed. To qualify, your income will need to fall between the minimum and maximum income requirements.
Q: What size unit do I qualify for?
A: Each unit has a maximum allowable occupancy based on local standards. The maximum is listed on each application. At FROM we try to match the size of the household to the size of the unit available. Please include all household members on the application so that we can match appropriately.
Q: When will I know if I got one of the apartments?
A: You will be emailed and called by May 15. Please be sure to write your email and phone number legibly on your application. You will have 72 hours to confirm your interest.
Q: Are pets allowed?
A: No, pets are not allowed.
Q: Can I smoke tobacco or marijuana in my unit?
A: No, smoking of any kind is not allowed in any of the units.
FROM is an equal opportunity housing and service provider.

